After Hyundai backed out of development

Alfa Laval site (Google maps)
An application has been submitted for Alfa Laval siate to become flats after Hyundai Motor (UK) recently cancelled its plans to redevelop and use the site as a car showroom.
Sheen Lane Developments Ltd are requesting Prior Approval to convert from Class B1a to C3, or in other words to develop Alfa Laval as residential containing 190 flats.
Alfa Laval does not fall in the area where permitted development rights have been removed, known as Article 4 direction.
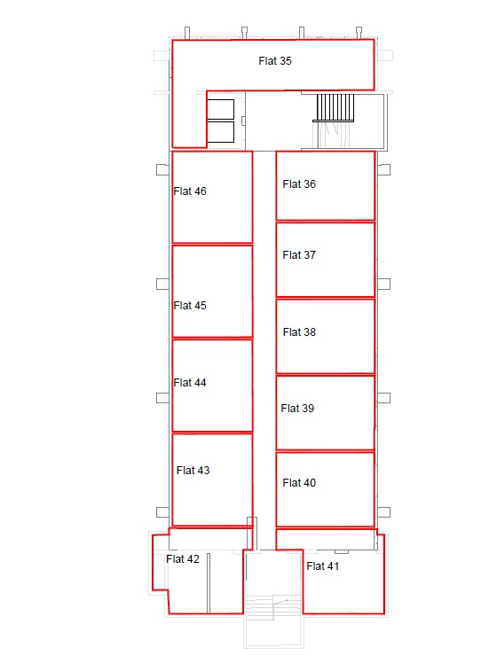
As this falls under Prior Approval full details of the plans are not submitted, with the following a sample floor plan.

first floor, similar to other 12 floors
Comments can be submitted by email to planning@hounslow.gov.uk quoting reference PAC/2019/3005 or online at www.hounslow.gov.uk/planning by selecting ‘Search planning applications’ and then entering reference PAC/2019/3005 into the application search field after you have accepted the conditions of use.
August 16, 2019